В процессе капитального ремонта однокомнатной квартиры обычно проводятся следующие работы: замена окон и дверей, перекладка полов, обновление электропроводки, установка новой сантехники и плитки в ванной комнате, а также покраска стен и потолков. После завершения ремонта, квартира приобретает свежий и современный вид, готовый для комфортного проживания.
Капитальный ремонт однокомнатной квартиры в Чебоксарах
Подберем недорогое и практичное решение с гарантией 1 год
Рассчитайте стоимость ремонта и получите скидку 1%
Опубликовано: 10.11.2023 Проверено на актуальность: 09.03.2026
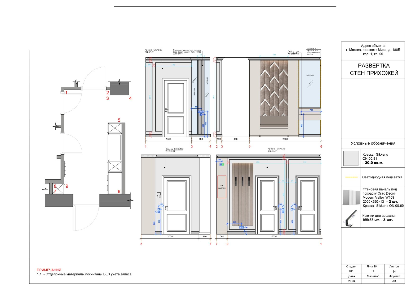
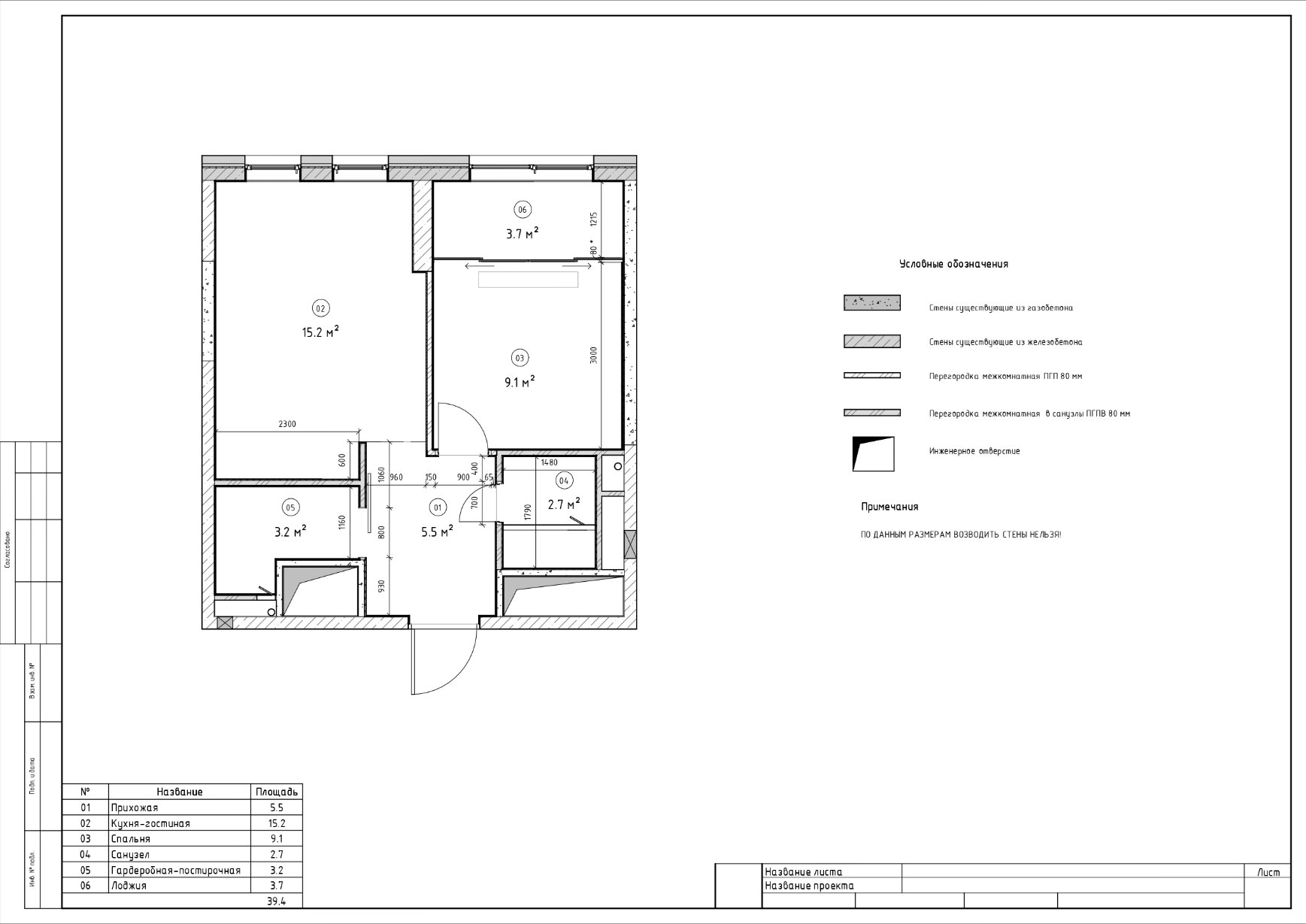
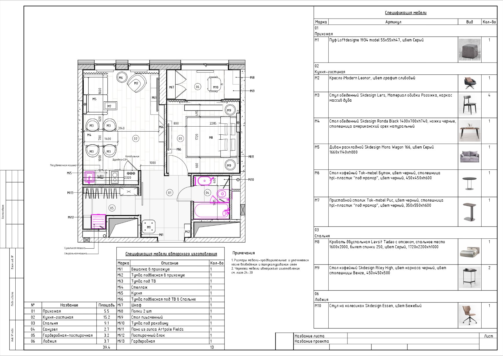
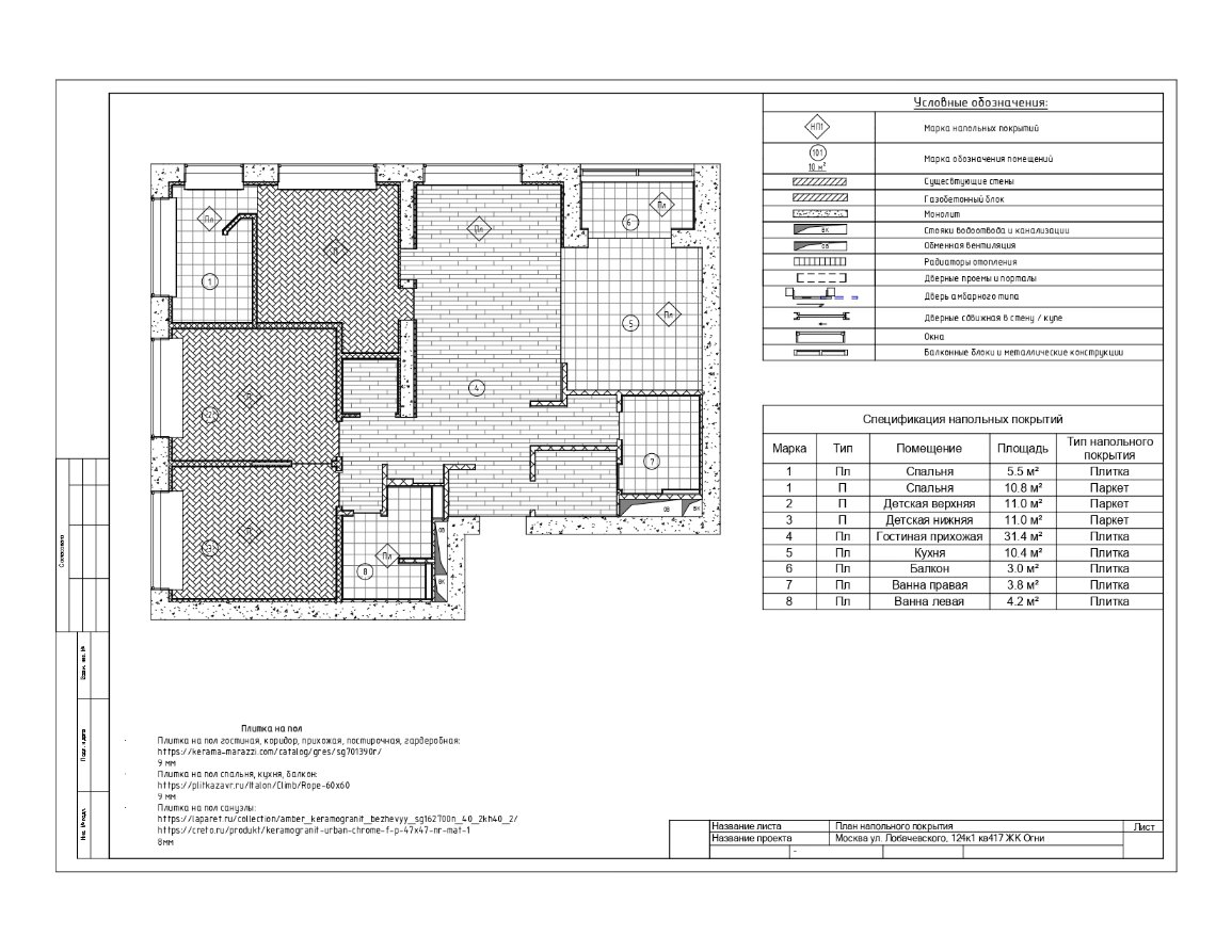
https://kvartiry21.ru/kapitalnyj-remont-odnokomnatnoj-kvartiry/ В процессе капитального ремонта однокомнатной квартиры обычно проводятся следующие работы: замена окон и дверей, перекладка полов, обновление электропроводки, установка новой сантехники и плитки в ванной комнате, а также покраска стен и потолков.Примеры наших работ
Запишитесь на
бесплатный замер
- Сориентируем по точным срокам и стоимости работ
- Ответим на все вопросы, предложим варианты реализации ваших идей
- Получите бесплатную полную смету со всеми работами
Тарифы на капитальный ремонт в 1-комнатной квартире и не только
Средняя стоимость капитального ремонта однокомнатной квартиры
| Тип квартиры | Площадь | Прайс на материалы | Цена на работу | Итого | Сроки |
|---|---|---|---|---|---|
| Студия | 13-14 кв.м. | 92 000 ₽ | 282 000 ₽ | 408 000 ₽ | 1,5 месяца |
| Студия | 16 кв.м. | 104 000 ₽ | 298 000 ₽ | 440 000 ₽ | 1,5 месяца |
| Студия | 19-20 кв.м. | 120 000 ₽ | 472 000 ₽ | 592 000 ₽ | 1,5 месяца |
| Однокомнатная | 28 кв.м. | 168 000 ₽ | 661 000 ₽ | 829 000 ₽ | 1,5 месяца |
| Однокомнатная | 30 кв.м. | 180 000 ₽ | 708 000 ₽ | 888 000 ₽ | 1,5 месяца |
| Однокомнатная | 32 кв.м. | 192 000 ₽ | 755 000 ₽ | 947 000 ₽ | 1,5 месяца |
| Однокомнатная | 33 кв.м. | 198 000 ₽ | 779 000 ₽ | 977 000 ₽ | 1,5 месяца |
| Однокомнатная | 34 кв.м. | 204 000 ₽ | 802 000 ₽ | 1 006 000 ₽ | 1,5 месяца |
| Однокомнатная | 35 кв.м. | 210 000 ₽ | 826 000 ₽ | 1 036 000 ₽ | 1,5 месяца |
| Однокомнатная | 37 кв.м. | 222 000 ₽ | 873 000 ₽ | 1 095 000 ₽ | 1,5 месяца |
| Однокомнатная | 40 кв.м. | 240 000 ₽ | 944 000 ₽ | 1 184 000 ₽ | 5-6 недель |
| Однокомнатная | 45 кв.м. | 270 000 ₽ | 1 062 000 ₽ | 1 332 000 ₽ | 5-6 недель |
Дизайн-проект в подарок, если оставите заявку прямо сейчас
Кроме дизайн-проекта вы получаете:
- Бесплатную консультацию по всем вопросам
- Узнаете подробную смету и стоимость ремонта
- Дадим гарантию 36 месяцев после приёмки помещения
Как мы работаем
Что включает капитальный ремонт однокомнатной квартиры
В зависимости от пожеланий, требований заказчика, могут быть дополнительно проведены работы по подключению оборудования, сборке мебели и пр. Список возможных задач может быть легко расширен или, наоборот, сокращен. Какие работы выполняются во время капитального ремонта обычной типовой однокомнатной квартиры? Перечень включает следующие процессы:
- Черновой ремонт – демонтаж и удаление старых покрытий, шпатлевание, штукатурка, демонтаж старых окон и дверей и установка новых.
- Предчистовая отделка – нанесение чернового покрытия на стены, потолок и полы
- Чистовая отделка – нанесение (поклейка, установка, покраска) чистовых стройматериалов на стены, укладка на пол линолеума, паркета и т.д., монтаж потолка
- Электрика и сантехника – проводим все коммуникации и подключаем к электросети
Получите бесплатную консультацию
Получите бесплатную консультацию и полный прайс на ремонт квартир
Как проходит капитальный ремонт однокомнатной квартиры
Современный капитальный ремонт однушкЧувашской республикежно условно разделить на следующие стандартные этапы:
-
- Демонтаж старых отделочных материалов и мебели.
- При необходимости, замена электропроводки и сантехнических коммуникаций.
- Выравнивание стен и потолка.
-
- Штукатурка и выравнивание стен и потолка.
- Поклейка обоев или покраска стен.
- Укладка напольного покрытия, такого как ламинат, паркет или плитка.
- Монтаж потолков — натяжных, навесных, двухуровневых и других типов.
- Установка потолочных плинтусов и наличников.
-
- Укладка плитки на стены и пол.
- Установка сантехнического оборудования, такого как раковина, унитаз, ванна или душевая кабина.
- Подключение сантехники к водопроводу и канализации.
-
- Установка кухонной мебели и бытовой техники.
- Подключение электроприборов и сантехники.
-
- Установка оконных рам и стекол.
- Установка входной и межкомнатных дверей.
-
- Установка светильников и розеток.
- Покраска и декорирование интерьера.
- Установка штор и жалюзи.
Преимущества работы с нами
-
Гарантия
В течение 36 месяцев (до года если если стройматериалы не наши) мы бесплатно устраним выявленные дефекты после приемки.
-
Скидки и Акции
Регулярно проводим акции для клиентов.
-
Смета в день замера
Точная смета на реконструкцию помещения составляется при вас инженер-сметчик на объекте.
-
Официальный договор
Заключаем договор с фиксацией этапов работ, сроков и стоимости.
-
Профессиональные дизайнеры
Предложим готовые варианты перепланировок, итрьера и сделаем чертеж с визуализацией для выбора уютного стиля.
-
Собственный склад строительных материалов
Строительные бригады получают высококачественные материалы без задержек и не дорого для вашего кармана, а заказчик получает выгодную стоимость.
Наши мастера
Цена ремонта однокомнатных квартир за квадратный метр
-
от 9000 ₽/м2
Бюджетный
-
от 11000 ₽/м2
Косметический
-
от 23000 ₽/м2
Капитальный
-
от 11000 ₽/м2
Ремонт квартир под ключ
-
от 11000 ₽/м2
Чистовой
-
от 14000 ₽/м2
Черновой
-
от 44000 ₽/м2
Элитный
-
от 11000 ₽/м2
Ремонт в новостройке
Другие услуги компании
Калькулятор ремонта квартир с материалом
Стоимость отдельных видов работ и комнат
-
от 2000 руб.
Монтаж электрики
- Демонтажные работы
- Штробление стен из кирпичной кладки и бетона
- Шпаклевка и заделка швов после укладки проводов
- Сверление ниш и отверстий под установку розеток и коробок, частичная разводка электрики
- Прокладка электровыводов на натяжном и подвесном потолке
- Установка дополнительных систем защиты – УЗО, автоматы
- Проверка силовых сетей большого сечения
- Обслуживание внутренних модулей, коробов и электрических боксов
- Сверление и монтаж подрозетников
- Наладка и монтаж внешнего и внутреннего видеонаблюдения
-
от 2000 ₽/м2
Монтаж сантехники
- Установка новой ванны
- Установка полотенцесушителя
- Монтаж коммуникаций
- Установка труб
- Монтаж унитаза
- Проектировка и монтаж теплого пола
- Замена фановых труб, клапанов, манжетов
- Доставка и установка стиральных машин, моек с сифоном и других сантехнических устройств
-
от 1000 ₽
Демонтаж
- Стен
- Потолков
- Пола (например старой паркетной доски и лаг)
- Снятие плитки со стен
- Парапет на балконе или лоджии в панельном доме
- Штробление и срез старых угловых покрытий
- Проверка центральных стояков и помощь в из замене
- Наладка ХВС и ГВС (холодное и горячее водоснабжение)
-
от 11000 ₽/м2
Ремонт ванных комнат и санузлов
- Демонтаж старых покрытий (керамической плитки, краски, панелей, старые доски и деревянного каркаса старых ванн, старой ванный и душевой кабины)
- Полная или частичная гидроизоляция
- Изоляция все сложных стыков, швов и примыкания блоков помещения, для исключения протечек
- Подчищаем, делаем шлифовку и заливаем стяжку наливным самонивелирующимся полом
- Выравниваем стены шпатлевками, при необходимости в два слоя
- Покупаем и делаем нанесение специальной краски и грунтовки от плесени и появления грибка и обрабатываем ими все поверхности
- Электромонтажные работы – безопасная прокладка проводки, исключаем возможность короткого замыкания
- Укладка плитки керамогранитом или другим материалом, до облицовочных работ проверяем решетки вентиляции
- Облицовка стен плиточными материалами или панелями
- Паяем и прокладываем полипропиленовые (ПВХ) трубы, с установкой кранов перед каждым прибором
- Сборка и установка смесителя, раковины, кабинок и их подключение к канализации и к водопроводу
- Проверка всех узлов и оборудования на протечки воды и неисправности и их устранение
-
от 11000 ₽/м2
Ремонт гостиных комнат
- Составления плана реконструкции помещения комнаты
- Заказ и доставка стройматериалов
- Обработка внутренних стен, убираем старые половые (паркета, линолеума) и потолочные покрытия (если квартира вторичка)
- Строители демонтируют старые двери, дверные межкомнатные и оконные проемы
- Если в плане есть изменение планировки, то монтируем новые стены и зонирование
- Делаем финишную (чистовую) отделку по выбранной заказчиком технологии
- Важным моментом является установка новых устройств отопления (батарей радиаторов, кранов, клапанов) и их тестирование, особенно в старых кирпичных домах)
- Возможно установить кондиционер – стоимость рассчитывается отдельно
- Сдача помещения ответственным за ремонт сотрудникам (прорабам и начальникам объекта)
-
от 11000 ₽/м2
Ремонт кухни
- Обсуждение комфортной планировки и составление плана – например отделка под кирпич, с фартуком или без, освещение точечное из нескольких светильников или с одной люстрой
- Утверждаем проектирование и наличие противопожарных устройств защиты – датчиков дыма, аварийных кнопок и других устройств.
- По утвержденному плану делаем черновой ремонт, либо работаем с имеющимся помещением
- Замена ПВХ труб, канализации и электрики
- Производим чистовую отделку – отделка стен панелями (или другими настенными стройматериалами), электрика, монтаж натяжных, навесных или реечных потолков и карниза
- Установка и настройка бытовых приборов (газовая колонка, плита, духовой шкаф)
- Сдача и подпись акта приема-сдачи строительства помещения
Способы оплаты
-
Наличный
расчёт По договору -
Кредит на любые операции До 2х лет
-
Рассрочка На 3, 6, 9 месяцев
-
Безналичный
расчёт На наш счёт
О капитальном ремонте однокомнатной квартиры
Ответы на часто задаваемые вопросы
-
Конечно же нет, дороже не будет, все пункты ремонтных действий прописаны в договоре и после подписания стоимость работ в смете становиться фиксированной и не будет отличаться от стартовой. Цена ремонта зависит может быть изменена только по желанию клиента, если он хочет прибавить или убавить количество работ.
-
Да конечно, вы можете самостоятельно или через доверенных лиц и подрядчиков контролировать ход ремонта, либо мы можем вам присылать ролики видеоотчетов. Мы всегда тщательно проверяем работу мастеров на ошибки (которых никогда не бывает) на каждом этапе, поэтому предоставляем наши отчеты максимально прозрачные.
-
Оплата производиться любым удобным способом. Сотрудничаем со множеством государственных и коммерческих надежных банков и платежными системами. Отправьте заявку и менеджер расскажет всю информацию.
-
Да после каждого этапа ремонта наши сотрудники убирают рабочее пространство жилых помещений и утилизируют по всем нормам.
-
Оплату принимаем поэтапно либо другими способами, в любом случае все основные моменты обговариваются и фиксируются в договоре.
-
Данной задачей можете заняться самостоятельно, либо наши специалисты и мастера подберут и сделают покупку материалов самостоятельно по списку. У нашей фирмы есть хорошие скидки во множестве разных оптовых строительных магазинах, у которых всегда доступны в наличии необходимые стройматериалы. Так же у нас есть выход на прямых поставщиков и популярных производителей (Старатели, Knauf и т.д.), в любом случае вы можете сравнить и оценить наши расценки с другими, купить самостоятельно и сэкономить деньги на разнице цен.
-
С любым замерщиком, мастером, специалистом, инженером или консультантом вы можете рассказать и обсудить материалы, которые будут использоваться при отделке вашего жилища, получить совет по вашим вопросам и возникшим ситуациям, это для вас нисколько не будет стоить, посоветовать и честно подсказать верное решение – одна из главных наших задач.
-
Да конечно, произвести расчет стоимости затрат на ремонт квартиры, порядок и сроки его завершения сможете узнать у консультанта.
-
Косметический и черновой ремонт в квартирах небольшой площади происходит обычно в течении месяца, для больших объемов потребуются немного более детальные расчеты. В любом случае ремонт не будет длиться дольше, чем прописано в договоре.
-
У нас работают только опытные мастера из РФ, каждый профи с большим опытом в своей сфере ремонта. Мы обязательно проверяем и берем на работу проверенных и квалифицированных мастеров.
-
Оставьте запрос удобным для вас способом на сайте и наш менеджер проконсультирует по любым вопросам и вашим целям по ремонту, далее пришлет приблизительную (минимальную) стоимость. Точную цену можно узнать только после получения данных замера и составления сметы.
-
Да, мы работаем согласно и в соответствии с ГОСТ и СНиП. На инженерные и строительные работы есть допуск СРО и сертификат ISO 9001.
-
Сам процесс ремонта можно согласовать с ведущим специалистом вашего проекта, он скоординирует работу и время проживания. Например делать ремонт квартиры только с 8-00 до 17-00, в выходные дни (не нарушая законодательства) и другие варианты.
-
В технический паспорт необходимо грамотно внести и заполнить все изменения, которые связаны с конфигурацией квартиры при ремонте. При этом практически все работы должны соответствовать требованиям СНиП. Чтобы избежать и не столкнуться со сложностями в будущем и не приходилось обращаться в суд для изменения документации, рекомендуется заранее обратиться в соответствующие регистрирующие органы для оформления документов, возможно застройщик дома тоже сможет помочь. Перепланировкой считается перенос стен и проемов. В техническом паспорте также должны быть правильно отражены результаты ремонта и переустройства, включая перенос инженерных сетей и электропроводки. Важно отметить, что строго запрещено сносить или изменять несущие стены и колонны, такое нарушение может повлечь штраф и другие проблемы.
-
Да конечно, мы выполняем как комплексные так и отдельные работы по ремонту квартир, включая электрику, сантехнику и т.д.
-
Aвторский нaдзор – это контроль над всеми частями и этапами планирования ремонта в квартире по изначально составленному дизайн-проекту. То есть специалист, который составлял дизайн-проект с особой щепетильностью будет следить за его реализацией и состоянием до самого конца ремонта, оперативно давать правки, посмотрит и проконтролирует другие стадии стройки.
-
Так довольно легко и намного точнее получается рассчитать предварительную примерную стоимость ремонта квартиры в короткий срок. Конечно же, для точного и подробного расчета необходим выезд специалиста – снять предварительно размеры, оценить фронт и передать данные по ремонту сметчику.
-
В стандартном виде есть такие пункты:
- подготовка к ремонту – демонтаж, очистка и подготовка поверхностей
- выравнивание стен и потолка – штукатурка, гипсокартонные работы, покраска
- монтаж пола и потолка – устройство половых покрытий, натяжные потолки, монтаж освещения
- подбор и установка сантехники и электрики
- монтаж дверей и окон
- отделка квартиры – покраска, обои, наличники, плинтусы
Запишитесь на
бесплатный замер
- Сориентируем по точным срокам и стоимости работ
- Ответим на все вопросы, предложим варианты реализации ваших идей
- Получите бесплатную полную смету со всеми работами
Видео отзывы
Отзывы наших клиентов
Смотреть больше отзывов на Яндекс картах
Остались вопросы? Свяжитесь с нами любым удобным способом
Оставьте заявку ниже и наш менеджер свяжется с вами, чтобы ответить на любой ваш вопрос
Особенности капитального ремонта в однушке
Особенности капитального ремонта в однушке можно перечислить следующим образом:
- Небольшая площадь помещения, требующая тщательного планирования и оптимизации использования пространства.
- Разделение комнаты на функциональные зоны, такие как спальня и гостиная.
- Учет особенностей планировки для создания оптимальной организации пространства.
- Выбор мебели и отделочных материалов, сочетающихся с размерами и стилем квартиры.
- Улучшение систем электропроводки, водоснабжения и отопления для обеспечения комфорта и безопасности в квартире.
Коротко о фирме Квартиры 21
Мы представляем строительную фирму, которая осуществляет отделку и ремонт квартир. Благодаря нашему опыту на рынке, сумели организовать эффективную работу и установить высокие стандарты качества. Мы стремимся удовлетворить все потребности и ожидания клиентов.
Один из ключевых факторов нашего успеха — наша команда профессионалов. Вместе работаем для достижения идеальных результатов в нашем профиле бизнеса, начиная с первого этапа и до сдачи объекта, честно воплощаем мечты клиентов. Учитываем график работы заказчика и стараемся сделать процесс ремонта максимально удобным и прозрачным.
Чтобы обеспечить удобство, предлагаем возможность связаться с нами через интернет или по телефону. Ценим каждого человека, который обращается, и всегда готовы предоставить необходимую информацию и ответить на все вопросы. Также осуществляем обратный звонок, чтобы сэкономить время наших клиентов.
Организация оказывает услуги не только в Чебоксарах, но и по всей в Чувашской республике, а так же в ближайших регионах около Чувашии, гордимся возможностью предложить свои услуги в различных городах и населенных пунктах. Фирма действует с учетом существующих требований и норм, чтобы обеспечить профессионально выполненную отделку и ремонт.
Независимо от того, с чего начинается проект, мы готовы принять вызов. Предлагаем индивидуальный подход к каждому клиенту, учитывая его предпочтения и особенности. Можете быть уверены, что ваша квартира будет преобразована в соответствии с высочайшими стандартами качества.
Если вам интересно узнать больше о нашей фирме и услугах, пожалуйста, обратитесь любым удобным способом или в офисе по указанному адресу г. Чебоксары, ул. Гражданская, д. 83. Будем рады предоставить всю необходимую информацию и предложить отличные решения. Работать с нами приятно и выгодно, так как есть правило – гарантируем экономию вашего времени и ресурсов.
Ждем вашего обращения, мы перезвоним сегодня же, и с нетерпением готовы представить и предложить нашу строительную компанию, как гарант качества со всеми преимуществами.























